Manor Walk
Manor Walk is an exclusive gated community of 3, 4, and 5 bedroom residences, thoughtfully designed to the highest standard. Each home showcases exquisite finishes, spacious interiors, and timeless architectural detail — offering luxurious living in a private and prestigious setting.
Just a five-minute walk from the historic village of Thaxted, residents enjoy a peaceful lifestyle with charming amenities and a strong sense of community in one of Essex’s most desirable locations.

Available Homes
Viewing by Appointment Please Contact Our Agents


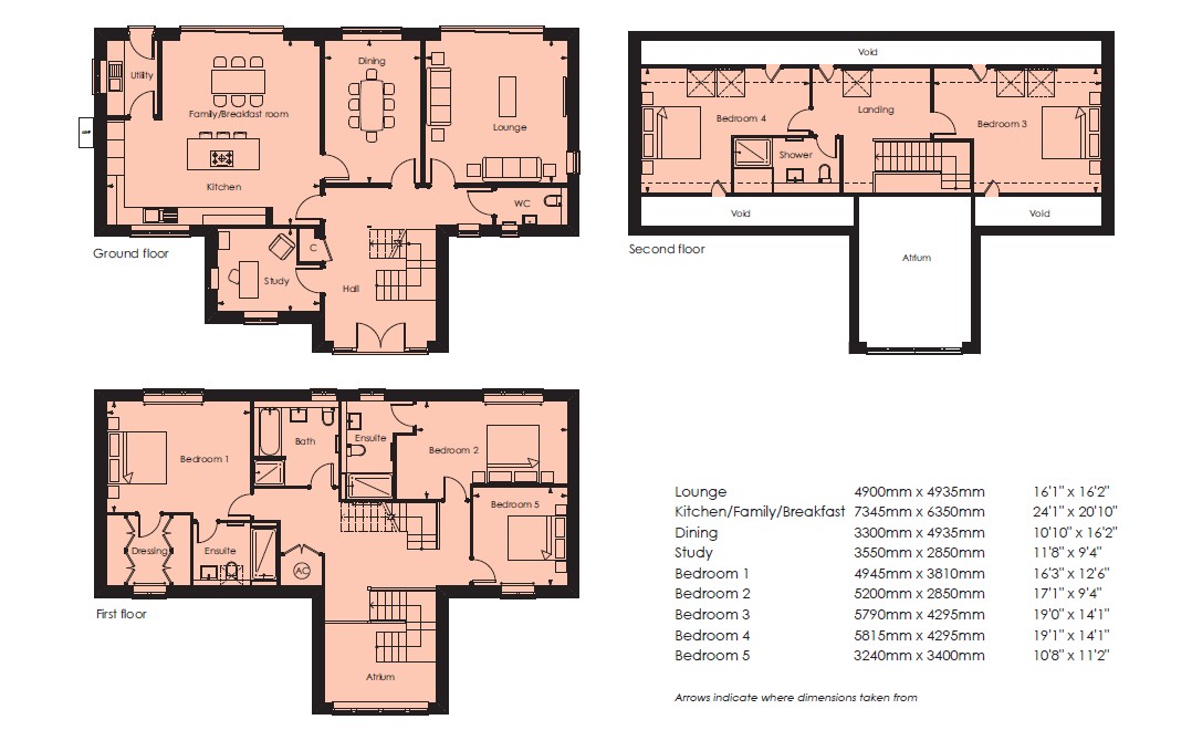
Home information
- Soft closers to draws and doors
- Silestone worktop and upstand
- High-end integrated appliances
- Stainless steel extractor hood
- Space for washer/dryer
- Inset 1.5 bowl sink and drainer
- Stylish Porcelanosa ceramic floor tiles


- Modern white sanitaryware
- Full height ceramic tiling around bath and shower cubicles, half height to all other walls.
- Soft closing white vanity unit with complementing basins
- Vado taps
- Surface mounted Vado thermostatic shower with bespoke sliding rail kit and head together with glass shower door
- Chrome heated towel rail
- Shaver point


- Air Source heat pump
- Underfloor heating to the ground floor
- Modern radiators with grilles to upper floor
- Pressurised hot water cylinder
- Electric car charging point
- Low energy downlighters in bathrooms, kitchens, ensuites and cloakrooms
- Low energy pendant lighting to all other rooms


- Built-in wardrobes including shelf and hanging rail to master bedroom
- High performance GRP front doors
- Chrome finish to internal door furniture
- Paved paths and patio area
- Landscaped gardens to the front and rear
- Outside tap
- 1.8 metre high close boarded fence between plots for privacy, timber gate with bolt and latch for security


- 10 year NHBC warranty
- Multi point locking systems to front and rear doors
- Mains-operated smoke detectors
- Wiring for external lighting to rear elevation
- Contemporary external lighting adjacent to front door
- Electronic gated access to development
Site Map

Local Information
Idyllic Countryside, Historic Charm
Perfectly positioned in rural Essex, Manor Walk offers residents the rare opportunity to enjoy luxury living just a 5-minute walk from the heart of the historic village of Thaxted — one of Essex’s most treasured locations.
Just 5 Minutes on Foot to:
- Thaxted’s charming high street with independent shops, pubs, and cafés
- The iconic Guildhall, John Webb’s Windmill, and St John the Baptist Church, home to Holst’s famous Lincoln organ
- Community events, farmers’ markets, and a warm village atmosphere
Education Excellence:
- Thaxted Primary School – Friendly local primary just minutes away
- Rainbow Pre-School – Nurturing early years care in the village
- Felsted School – Renowned independent school (ages 4–18)
- Saffron Walden County High School – Ofsted Outstanding
- Joyce Frankland Academy, Newport – Co-educational secondary nearby
- Bishop’s Stortford College – Esteemed independent day and boarding school
Local Leisure & Lifestyle:
- Thaxted Rangers FC, Bowling Club, and Tennis Club – Vibrant community sports
- Golf nearby:
- Bishop’s Stortford Golf Club
- Golf World Stansted – With gym, spa, and fitness facilities
Convenient Connectivity:
- Stansted Airport – Just 7.4 miles away
- Elsenham Station – Direct trains to:
- London Liverpool Street – from 56 mins
- Cambridge – from 30 mins
- Easy access to major roads: A120, A10, A12, and M11





























